Gemeinde Dürnau

Seitenbereiche

Volltextsuche

Dürnau
17°C

Sondergebiet Südlich Frühlingstraße

Auslegung des Bebauungsplans

Öffentliche Bekanntmachung

Auslegung des Bebauungsplanentwurfs „Südlich Frühlingsstraße“

[Hinweis: Der Text entspricht inhaltlich der Veröffentlichung vom 11.12.2025 im Mitteilungbslatt Nr. 50/2025. Rechtswirkung entfaltet ausschließlich die öffentliche Bekanntmachung in diesem Mitteilungsblatt]

Der Gemeinderat der Gemeinde Dürnau hat am 10.11.2025 in öffentlicher Sitzung den Entwurf des Bebauungsplans „Südlich Frühlingsstraße“ und der Örtlichen Bauvorschriften zum Bebauungsplan gebilligt und beschlossen diese nach § 3 Abs. 2 Baugesetzbuch (BauGB) zu veröffentlichen.

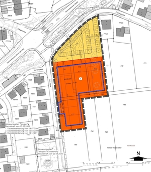
Das Plangebiet liegt am südlichen Ortsrand der Gemeinde Dürnau im Gewann Hintere Wiesenäcker.
Das Plangebiet wird im Westen durch die Straße Zum Köpfle und im Norden durch die Frühlingsstraße begrenzt und erstreckt sich von der Straße Zum Köpfle ca. 65 m nach Osten. Nach Süden erstreckt sich das Plangebiet bis ungefähr auf Höhe des bestehenden Wohnhauses Zum Köpfle 10.

Für den Geltungsbereich ist der zeichnerische Teil des Bebauungsplans in der Fassung vom 10.11.2025 maßgebend.
Der Planbereich ist im [folgenden] Planausschnitt dargestellt.

Ziele und Zwecke der Planung

In der Gemeinde besteht ein anhaltender Bedarf an Senioren-Pflegeplätze und betreutes Wohnen sowie weiterer öffentlicher Parkplätze für das das Schul- und Sportgebiet. Mit der Aufstellung des Bebauungsplans sollen die planungsrechtlichen Voraussetzungen für die Ansiedlung eines Seniorenzentrums mit Pflegeplätzen und betreutem Wohnen sowie die Schaffung weitere öffentlicher Stellplätze entlang der Frühlingsstraße geschafften werden.

Umweltbezogene Informationen

Bestandteil der veröffentlichen Unterlagen sind auch die bereits vorliegenden umweltbezogenen Stellungnahmen. Folgende Arten umweltbezogener Informationen sind verfügbar:

  • Umweltbericht zum Bebauungsplan mit Darlegung der Ziele des Umweltschutzes, der Feststellung des aktuellen Zustands, Beschreibung und Bewertung der baubedingten, anlagebedingten und betriebsbedingten Auswirkungen der Planung auf die betroffenen Schutzgüter Arten, Biotope, und Biodiversität und Biotopverbund, Boden/Geologie, Wasser, Klima/Luft, Landschaftsbild und Erholung, Mensch, Kultur und Sachgüter, Darstellung der Maßnahmen zur Vermeidung, Minimierung und Kompensation der mit der Umsetzung der Planung einhergehen Eingriffe im Plangebiet, der Ermittlung des verbleibenden Kompensationsdefizits;
  • Artenschutz-Voruntersuchung zum Bebauungsplan „Südlich Frühlingsstraße“ mit Darlegung der mit Darlegung der Vor-Ort ermittelten Habitatstrukturen und deren Potenziellen Eignung für Flora und Fauna, Ergebnisse der Prüfung der Auswirkungen des Planvorhabens auf den Artenschutz (Vögel, Fledermäuse, Reptilien und holzbewohnende Käfer).
  • Sonderuntersuchung Holzkäfer Ergebnisbericht Baumhöhlenbeprobung, Ergebnisse der aufgrund der Artenschutz-Voruntersuchung nachfolgend durchgeführten Sonderuntersuchungen zu holzbewohnenden Käferarten.
  • Stellungnahmen mit umweltbezogenen Informationen, die im Zuge der frühzeitigen Beteiligung der Öffentlichkeit und der Behörden eingegangen sind:
    - Landesamt für Geologie, Rohstoffe und Bergbau mit Hinweisen zu den geotechnischen Gegebenheiten im Plangebiet, den gesetzlichen Vorgaben zum Bodenschutz;
    - Landratsamt Göppingen mit Hinweisen zum Baumbestand im Plangebiet, zum Artenschutz (Totholzkäfer), zum Oberflächenwasserabfluss aus den Außengebieten, zur Regenwasserbewirtschaftung, zur Schallemissionen der angrenzenden Straßen und Sportanlagen, zu Kaltluftströmen, zur Betroffenheit landwirtschaftlicher Nutzflächen;

Beteiligung der Öffentlichkeit (§ 3 Abs. 2 BauGB)

Der Entwurf des Bebauungsplans und der Örtlichen Bauvorschriften zum Bebauungsplan mit zugehöriger Begründung, die Anlagen zur Begründung (Artenschutz-Voruntersuchung, Sonderuntersuchung Holzkäfer, Geräuschimmissionsprognose), der Umweltbericht, die vorliegenden umweltbezogenen Informationen sowie der Inhalt der öffentlichen Bekanntmachung werden

vom 15.12.2025 bis einschließlich zum 23.01.2026 (Veröffentlichungsfrist)

im Internet veröffentlicht.

Der Inhalt der ortsüblichen Bekanntmachung und die oben genannten Unterlagen können auf der Homepage der Gemeinde unter www.duernau.de/de/duernau/bauflaechen/sondergebiet-suedlich-fruehlingstrasse und unter http://www.m-quadrat.cc/downloads.php eingesehen werden.

Während der Veröffentlichungsfrist können Stellungnahmen abgegeben werden. Die Stellungnahmen sollen elektronisch an die E-Mail Adresse gemeinde(@)duernau.de übermittelt werden. Bei Bedarf können die Stellungnahmen auch auf anderem Weg abgegeben werden (schriftlich oder mündlich zur Niederschrift während der üblichen Öffnungszeiten). Da das Ergebnis der Behandlung der Stellungnahmen mitgeteilt wird, ist die Angabe der Anschrift des Verfassers zweckmäßig.

Sollte eine persönliche Information zur Planung, oder eine mündliche Stellungnahme zur Niederschrift zur Planung gewünscht werden, ist dies während der üblichen Öffnungszeiten möglich.

Es wird darauf hingewiesen, dass nicht fristgerecht während der Veröffentlichungsfrist abgegebene Stellungnahmen bei der Beschlussfassung über den Bebauungsplan unberücksichtigt bleiben können.

Die oben genannten Unterlagen liegen zusätzlich während der Veröffentlichungsfrist im Foyer / Eingangsbereich (EG) des Rathauses der Gemeinde Dürnau, Hauptstraße 16, 73105 Dürnau zu den üblichen Öffnungszeiten öffentlich aus.

Dürnau, den 11.12.2025

gez.
Markus Wagner
Bürgermeister

DOWNLOAD UNTERLAGEN

Bebauungsplan "Südlich Frühlingstraße" (Unterlagen zur öffentlichen Auslegung)

Zeichnerischer Teil

Textteil

Begründung

Umweltbericht

Artenschutz-Voruntersuchung

Sonderuntersuchung Holzkäfer

Stellungnahmen mit umweltbezogenen Informationen
- Landesamt für Geologie, Rohstoffe und Bergbau mit Hinweisen zu den geotechnischen Gegebenheiten im Plangebiet, den gesetzlichen Vorgaben zum Bodenschutz
- Landratsamt Göppingen mit Hinweisen zum Baumbestand im Plangebiet, zum Artenschutz (Totholzkäfer), zum Oberflächenwasserabfluss aus den Außengebieten, zur Regenwasserbewirtschaftung, zur Schallemissionen der angrenzenden Straßen und Sportanlagen, zu Kaltluftströmen, zur Betroffenheit landwirtschaftlicher Nutzflächen;

Geräuschimmissionsprognose

Frühzeitige Beteiligung

Öffentliche Bekanntmachung

Aufstellung des Bebauungsplanes

„Südlich Frühlingsstraße“ in Dürnau

[Hinweis: Der Text entspricht inhaltlich der Veröffentlichung vom 01.02.2024 im Mitteilungbslatt Nr. 5/2024. Rechtswirkung entfaltet ausschließlich die öffentliche Bekanntmachung in diesem Mitteilungsblatt]

Der Gemeinderat der Gemeinde Dürnau hat am 15.05.2023 in öffentlicher Sitzung aufgrund von § 2 Abs. 1 Baugesetzbuch (BauGB) die Aufstellung des Bebauungsplanes „Südlich Frühlingsstraße“ und die Aufstellung der Satzung über die örtlichen Bauvorschriften nach § 74 Landesbauordnung (LBO) zum Bebauungsplan beschlossen. Am 15.01.2024 hat der Gemeinderat den Vorentwurf des Bebauungsplans gebilligt und beschlossen die frühzeitige Beteiligung der Öffentlichkeit und der Behörden zu diesem durchzuführen.

Das Plangebiet liegt am südlichen Ortsrand der Gemeinde Dürnau im Gewann Hintere Wiesenäcker.

Das Plangebiet wird im Westen durch die Straße im Köpfle und im Norden durch die Frühlingsstraße begrenzt und erstreckt sich von der Straße Am Köpfle ca. 65 m nach Osten. Nach Süden erstreckt sich das Plangebiet bis ungefähr auf Höhe des bestehenden Wohnhauses Am Köpfle 10.

Für den Geltungsbereich ist der Vorentwurf des zeichnerischen Teils des Bebauungsplans in der Fassung vom 15.01.2024 maßgebend.

Der Planbereich ist im [folgenden] Planausschnitt dargestellt.

Ziele und Zwecke der Planung

In der Gemeinde besteht ein anhaltender Bedarf an Senioren-Pflegeplätze und betreutes Wohnen sowie weiterer öffentlicher Parkplätze für das das Schul- und Sportgebiet.

Mit der Aufstellung des Bebauungsplans sollen die planungsrechtlichen Voraussetzungen für die Ansiedlung eines Seniorenzentrums mit Pflegeplätzen und betreutem Wohnen sowie die Schaffung weitere öffentlicher Stellplätze entlang der Frühlingsstraße geschafften werden.

Frühzeitige Beteiligung der Öffentlichkeit (§ 3 Abs. 1 BauGB)

Der Vorentwurf des Bebauungsplans und der Örtlichen Bauvorschriften zum Bebauungsplan mit zugehöriger vorläufiger Begründung und Vorentwurf des Umweltberichts, die Artenschutz-Voruntersuchung vom 07.12.2023, der Lageplan Abgrenzung Geltungsbereich des Bebauungsplans vom 17.04.2023 sowie der Inhalt der öffentlichen Bekanntmachung werden

vom 05.02.2024 bis einschließlich zum 11.03.2024 (Veröffentlichungsfrist)

im Internet veröffentlicht.

Der Inhalt der ortsüblichen Bekanntmachung und die oben genannten Unterlagen können auf der Homepage der Gemeinde unter https://www.duernau.de/de/duernau/bauflaechen/sondergebiet-suedlich-fruehlingstrasse [siehe weiter unten] unter http://www.m-quadrat.cc/downloads.php eingesehen werden.

Während der Veröffentlichungsfrist können Stellungnahmen abgegeben werden. Die Stellungnahmen sollen elektronisch an die E-Mail Adresse gemeinde@duernau.de übermittelt werden.

Bei Bedarf können die Stellungnahmen auch auf anderem Weg abgegeben werden (schriftlich oder mündlich zur Niederschrift während der üblichen Öffnungszeiten, per Telefax unter der Fax­ Nr. 07164 - 91010-10). Da das Ergebnis der Behandlung der Stellungnahmen mitgeteilt wird, ist die Angabe der Anschrift des Verfassers zweckmäßig.

Sollte eine persönliche Information zur Planung, oder eine mündliche Stellungnahme zur Niederschrift zur Planung gewünscht werden, ist dies während der üblichen Öffnungszeiten möglich.

Es wird darauf hingewiesen, dass nicht fristgerecht während der Veröffentlichungsfrist abgegebene Stellungnahmen bei der Beschlussfassung über den Bebauungsplan unberücksichtigt bleiben können.

Die oben genannten Unterlagen liegen zusätzlich während der Veröffentlichungsfrist im Foyer / Eingangsbereich (EG) des Rathauses der Gemeinde Dürnau, Hauptstraße 16, 73105 Dürnau zu den üblichen Öffnungszeiten öffentlich aus.

Dürnau, den 01.02.2024

gez.

Markus Wagner
Bürgermeister

DOWNLOAD UNTERLAGEN

Bebauungsplan "Südlich Frühlingstraße" (frühzeitige Beteiligung)

Die Unterlagen liegen im PDF-Format vor.
Beim Anklicken öffnen diese in einem neuen Fenster.